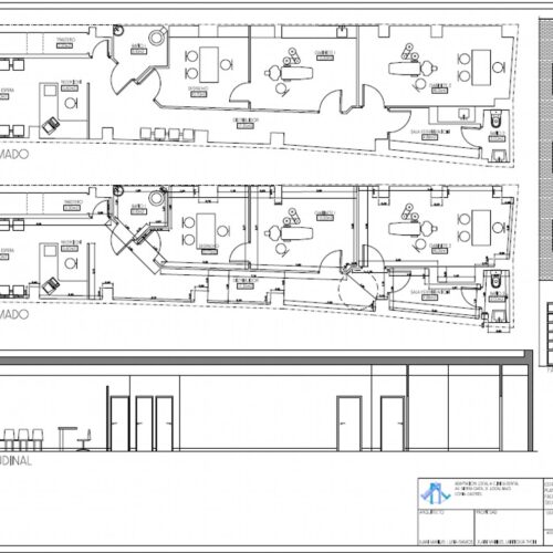
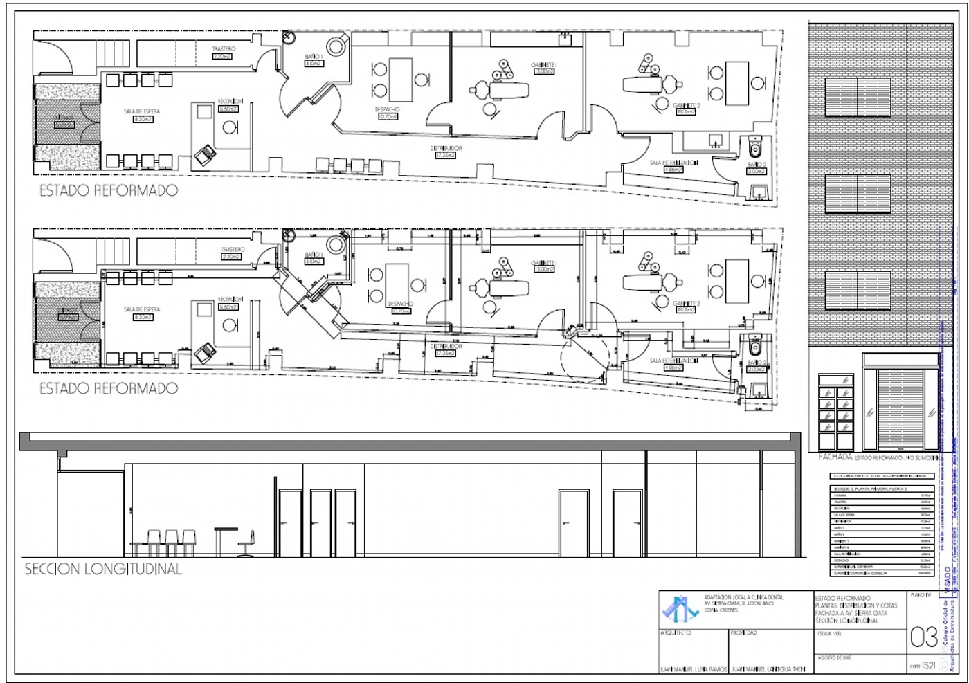
ADAPTACION LOCAL CLINICA DENTAL